Home
Vendi casa?
Cerchi casa?
Immobili in affitto
Servizi
Speciale cantieri
Username
Password
Tipologia
 
Registrati per ricevere informazioni sui nostri servizi.
Rif. 1234 Zona: Portuense - Magliana Adiacente: Via di Monte Stallonara Piano:
550.000 €
 
 
TipologiaVilla unifamiliareCucinaAbitabile
AscensoreNoTot. Piani2
GiardinoSiTerrazzoSi
Mq485Locali6
BalconiSiServizi4
GiardinoSiAnno ante 67
Terrazzo SiBoxBox Singolo
PortiereAssenteSoffittaSi
A.C.E.Visitasu appuntamento
 
Stato Interno Stato Esterno
Da ristrutturare Da ristrutturare
 
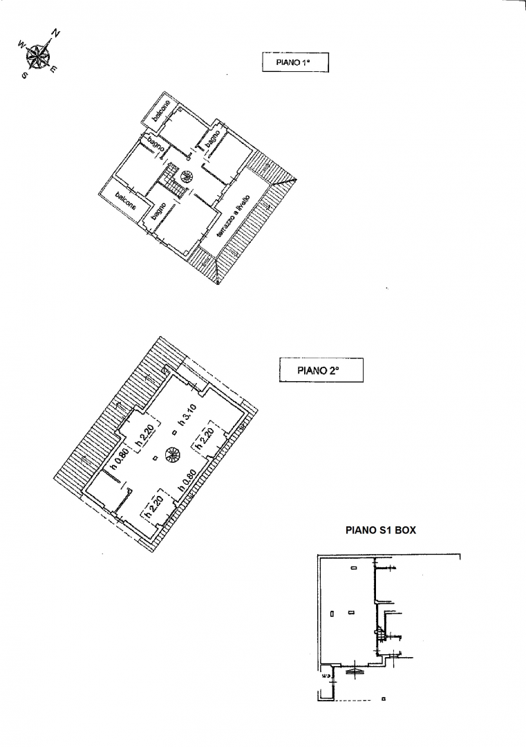
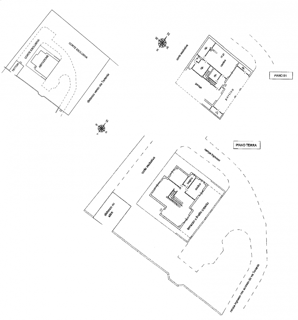
Ponte Galeria - e precisamente in VIA TERTENIA, proponiamo una villa unifamiliare di ampia metratura, con un ampio box di 89 mq ed oltre 2000 mq di terreno circostante, in parte pavimentato ed in parte giardino. La villa, disposta su 4 livelli collegati da una scala interna, internamente è composta da: Livello S1: quattro ripostigli, cantina, box ed un ampio portico; Livello T: salone doppio, camera, cucina, bagno ed terrazzo a livello coperto, Livello 1: quattro camere, tre bagni, due balconi ed un terrazzo a livello; Livello 2: mansarda. La richiesta è di € 550.000. Per maggiori informazioni e per fissare un appuntamento, contattare GRUPPO T IMMOBILIARE allo 06.65.888 o inviare una mail ad info@gruppot.com Classe Energetica G (306,9 kWh/mqa). Altre numerose foto sul nostro sito www.gruppot.com Ponte Galeria - precisely in VIA TERTENIA, we propose a roomy single-family villa with a large box of 89 sqm and more than 2000 sqm of surrounding land, partially paved and partly garden. The villa, develops on 4 levels connected by an internal staircase. Here the details of its composition: Level S1: four storage rooms, cellar, box and a large porch; Level T: double living room, bedroom, kitchen, bathroom and covered terrace, Level 1: four bedrooms, three bathrooms, two balconies and a terrace at level; Level 2: mansard. The request is € 550,000. For info and appointments call GRUPPO T IMMOBILIARE at 06.65.888 or send an email to info@gruppot.com. Energy Class G (306.9 kWh / sqm) More photos on our site www.gruppot.com
 
 
Condividi
 
 
 
GRUPPO T immobiliare srl | Molto più di una semplice agenzia


Ingresso Pedonale: V.le Isacco Newton, 126 - 00151 Roma
Sede legale: VIA DEL CASALETTO 671/B – 00151 ROMA
Telefono 06/65888 - mail: info@gruppot.com - P.IVA 12753831002
Grafica e comunicazione Altra|via